Categoría: Edificaciones, Instalaciones
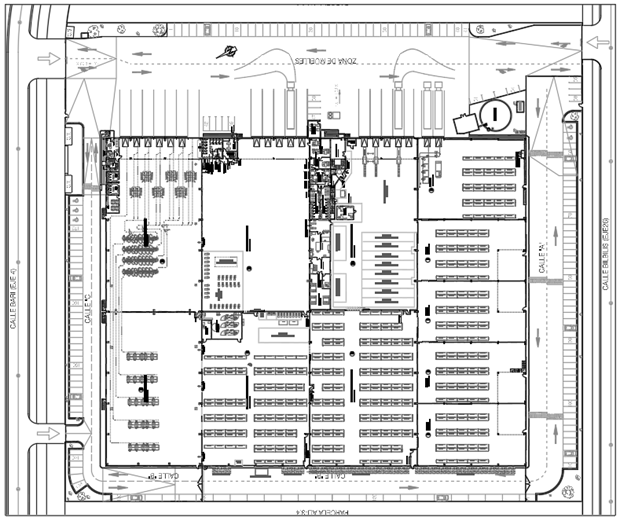
Localización: Naves A a H, C/Bari, 28 de Plaza (Zaragoza)
Cliente: LACOR TEXTIL, S.L
Servicios:
•Proyecto, Dirección de Obra y CSS del Acondicionamiento de naves
•Proyecto de Actividad de naves
•Proyecto y Dirección de Obra de la Instalación PCI de la nave
•Control Ejecución Instalaciones de la nave
Superficie: 30.825,00 m2
Fecha: julio 2025
Estado de la obra: En ejecución
Localización: Naves A a H, C/Bari, 28 de Plaza (Zaragoza)
Cliente: LACOR TEXTIL, S.L
Servicios:
•Proyecto, Dirección de Obra y CSS del Acondicionamiento de naves
•Proyecto de Actividad de naves
•Proyecto y Dirección de Obra de la Instalación PCI de la nave
•Control Ejecución Instalaciones de la nave
Superficie: 30.825,00 m2
Fecha: julio 2025
Estado de la obra: En ejecución