Categoría: Edificaciones, Instalaciones
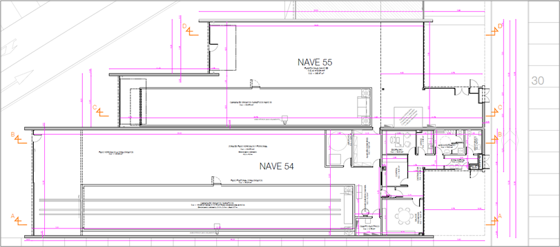
Localización: Naves 54 y 55 – Avda. Diagonal Plaza, 15 – Parcela AS 2.2 de Plaza (Zaragoza)
Cliente: Fundación Centro Tecnológico Metalmecánico y del Transporte, CETEMET
Servicios:
•Proyecto, Dirección de Obra y CSS del Acondicionamiento de naves
•Proyecto de Actividad de naves
•Proyecto y Dirección de Obra de la Instalación PCI de la nave
•Proyecto y Dirección de Obra de la Instalación BT de la nave
•Control Ejecución Instalaciones de la nave
Superficie: 1097,00 m2
Fecha: junio 2023
Estado de la obra: Finalizada
Localización: Naves 54 y 55 – Avda. Diagonal Plaza, 15 – Parcela AS 2.2 de Plaza (Zaragoza)
Cliente: Fundación Centro Tecnológico Metalmecánico y del Transporte, CETEMET
Servicios:
•Proyecto, Dirección de Obra y CSS del Acondicionamiento de naves
•Proyecto de Actividad de naves
•Proyecto y Dirección de Obra de la Instalación PCI de la nave
•Proyecto y Dirección de Obra de la Instalación BT de la nave
•Control Ejecución Instalaciones de la nave
Superficie: 1097,00 m2
Fecha: junio 2023
Estado de la obra: Finalizada